Trilocale in vendita

Milano, Via Antonia Pozzi - Fiera Via Albani
€ 690.000
3 locali 3 locali
105 Mq 105 Mq
1 bagno 1 bagno

Trilocale in vendita

Milano, Via Antonia Pozzi - Fiera Via Albani

Descrizione annuncio

Via Antonia Pozzi:

Nel cuore del quartiere CITY-LIFE, adiacente a Via Guglielmo Silva, a Via Monte Rosa e Piazzale Arduino, quindi nei pressi di Piazza Tre Torri ed a pochi metri dalle fermate della metropolitana M1/M5 LOTTO(ingresso Monte Rosa), M1 AMENDOLA ed M5 TRE TORRI, oltre che dalle fermate dei vari mezzi di superficie (bus 78/68/48/NM1/90/91), che in meno di 10 minuti collegano al centro della città, proponiamo in contesto signorile degli anni 60, un ESCLUSIVO trilocale con UN GRANDE TERRAZZO, AMPIO BALCONE e DOPPIA ESPOSIZIONE, posto al quarto piano, in stabile dotato di ascensore e servizio di portineria part-time.

La zona risulta tranquilla e ben servita, fornita di tutti i servizi di prima necessità come supermercati, farmacie, scuole, poste, bar, ristoranti. Inoltre, il quartiere City-Life è divenuto simbolo del prestigio milanese: celebra la modernità con costruzioni avveniristiche, un'edilizia ecosostenibile, piste ciclabili, vaste aree di verde pubblico, locali e pub trendy ed il più grande centro commerciale urbano d'Italia. City Life rappresenta una Milano nuova, in continuo divenire, architettonicamente all'avanguardia, simboleggiata dalle ormai iconiche tre torri.

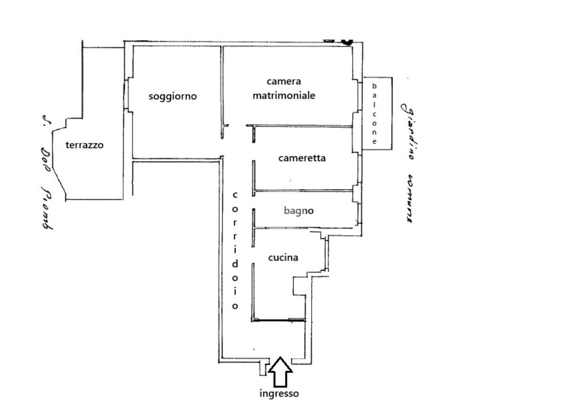
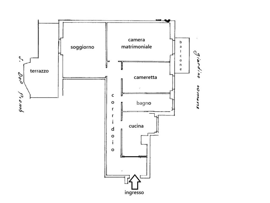
L'appartamento risulta così composto:

Ingresso in corridoio, dove troviamo, sulla sinistra, un ampio soggiorno dotato di porta finestra che consente l'accesso a un grande terrazzo, ideale per godersi momenti di relax all'aperto, pranzi o serate in compagnia, con un piacevole affaccio su Via Sebastiano Del Piombo. Dall'altro lato, con esposizione opposta, troviamo la cucina abitabile finestrata, anch'essa luminosa, che si affaccia su una corte interna, perfetta per chi ama cucinare in tranquillità e al contempo godersi una vista serena e riservata. Proseguendo, con la stessa esposizione, accediamo alla zona notte, composta da: una camera matrimoniale con porta finestra che permette l'accesso al balcone, una seconda stanza, attualmente adibita a studio, ma versatile e facilmente trasformabile in una stanza per bambini, e infine un bagno finestrato, con vasca.

L'appartamento si presenta in buone condizioni, con materiali di pregio. La pavimentazione è in marmette in quasi tutti gli ambienti, conferendo un senso di accoglienza ed eleganza, fatta eccezione per il soggiorno, dove è presente il parquet a spina di pesce, e per il bagno, dove troviamo piastrelle. Inoltre, l'immobile è dotato di porta blindata, infissi in doppio vetro PVC, impianto di aria condizionata sia nel soggiorno che nella camera, e armadiature a muro su misura.

Plus da specificare è da ritrovare nel piano alto, che garantisce Aereosità e luminosità all'appartamento.

Riscaldamento Centralizzato a pavimento.

Cantina di pertinenza.

Soluzione ideale sia per investimento, data la posizione strategica e la disposizione degli ambienti, sia per famiglie.

Le immagini pubblicate sono state ritoccate con l'aggiunta di mobili a scopo illustrativo e non costituiscono un'offerta contrattuale.

Ogni agenzia ha un proprio titolare ed è autonoma.

Le informazioni non costituiscono elementi contrattuali.

VALUTAZIONI GRATUITE E SENZA IMPEGNO.

Mostra tutto

Nelle vicinanze

Trasporto pubblico Trasporto pubblico
Lotto
Lotto
360 m
Portello
Portello
410 m
Milano Nord Cadorna
Milano Nord Cadorna
2,4 Km
stazione di Milano Villapizzone
stazione di Milano Villapizzone
2,7 Km
Piazza Monte Falterona
Piazza Monte Falterona
740 m
Ricariche auto elettriche Ricariche auto elettriche
A2A AmendolaFiera
480 m
A2A Isola Digitale Piazza Amendola
600 m
Sorgenia
630 m
A2A Q8 Easy
740 m
Autotecnica 95
860 m
Scuole Scuole
Scuola Superiore del Commercio del Turismo dei Servizi e delle Professioni
660 m
Istituto Superiore Ercole Marelli
910 m
Scuola Secondaria di Primo Grado Matteo Ricci
1,0 Km
Scuola secondaria di primo grado Moscati-Mameli
1,2 Km
Istituto Leone Tredicesimo
1,2 Km
Farmacia Farmacia
Farmacia Giulio Cesare
650 m
A.F.M. Farmacia Comunale 74
790 m
Lloyds Farmacia N.66
880 m
Farmacia
970 m
Essere benessere
1,1 Km
Ospedali Ospedali
Ospedale FieraMilano
530 m
Istituto Scientifico Ospedale San Luca
740 m
Istituto Clinico Sant'Ambrogio
820 m
Casa di Cura San Giovanni
1,5 Km
Ospedale dei Bambini "Vittore Buzzi"
1,7 Km
Supermercati Supermercati
Esselunga di Viale Vigliani
280 m
Esselunga
470 m
Conad City
720 m
Carrefour Market
800 m
Penny
900 m
Negozi Negozi
Negozi
630 m
Taddei & Co.
710 m
Il Forno Caffè delle Fantasie
730 m
Le Papere
980 m
Panificio Pasticceria Marcon
1,0 Km
Bar Bar
City Life Cafe
200 m
Meeting
400 m
Bar Torrefezione
740 m
Morgan
780 m
Big School Cafè
850 m
Ristoranti Ristoranti
Pizzeria Ranch Roberta
200 m
Masaccio
200 m
La Nuova Tavernetta
270 m
Lo Zenzero
320 m
GUD Milano CityLife
390 m
Mostra tutto

Caratteristiche

Rif.:
61144264
Piano:
4 di 7 con ascensore (Piano alto)
Balconi:
1
Terrazzi:
1
Camere da letto:
2
Arredamento:
Completo
Mostra tutto
Prezzo Prezzo
€ 690.000
Rata mutuo Rata mutuo
€ 3.253 / mese
Spese annue Spese annue
€ 4.200
Proponi il tuo prezzoProponi il tuo prezzo

Classe Energetica

F
F
F
F
F
F
F
F
F
EP globale non rinnovabile:
271.93 kW h/m² anno
EP globale rinnovabile:
271.93 kW h/m² anno
EP invernale del fabbricato:
EP estiva del fabbricato:
Anno di costruzione:
1960
Riscaldamento:
Centralizzato
Tipo impianto:
A pavimento
Tipo alimentazione:
Metano

Ti interessa visionare l'immobile?

Fissa un appuntamento  Fissa un appuntamento

Richiedi informazioni

Clicca su Leggi per aprire l'informativa
* Questi campi sono obbligatori

Calcola il tuo mutuo

Semplice e senza impegno
Anticipo

( % )
Mutuo

( % )

pochi semplici passi

inserisci i tuoi dati
Questionario completato
Grazie per aver richiesto un appuntamento senza impegno con un nostro Consulente del Credito e Assicurativo.

Hai inserito correttamente tutti i dati necessari e a breve riceverai una e-mail con un link da convalidare per inviare i tuoi dati.
Affiliato
Immobiliare Milano Ovest Srl
Via Albani, 63 20148 Milano (MI)

Il nostro staff


  • Jolanda Castronuovo
    Coordinatrice

  • Henry Joel Aguilar Ramirez
    Collaboratore

  • Giancarlo Aurora
    Responsabile

  • Davide Riso
    Collaboratore
Via Albani, 63 20148 Milano (MI)
Zona: City Life-Fiera-Monterosa
Mostra su mappa
Orari: Lunedì al Venerdì: 09.00 - 20.00 ; Sabato 09.00 - 17.00
Affiliato
Immobiliare Milano Ovest Srl
Via Albani, 63 20148 Milano (MI)

2026 Tecnocasa Franchising S.p.A. - P. IVA 08365160152 - Via Monte Bianco 60/A 20089 Rozzano (MI). Ogni agenzia ha un proprio titolare ed è autonoma. Privacy policy | Policy utilizzo | Cookie policy